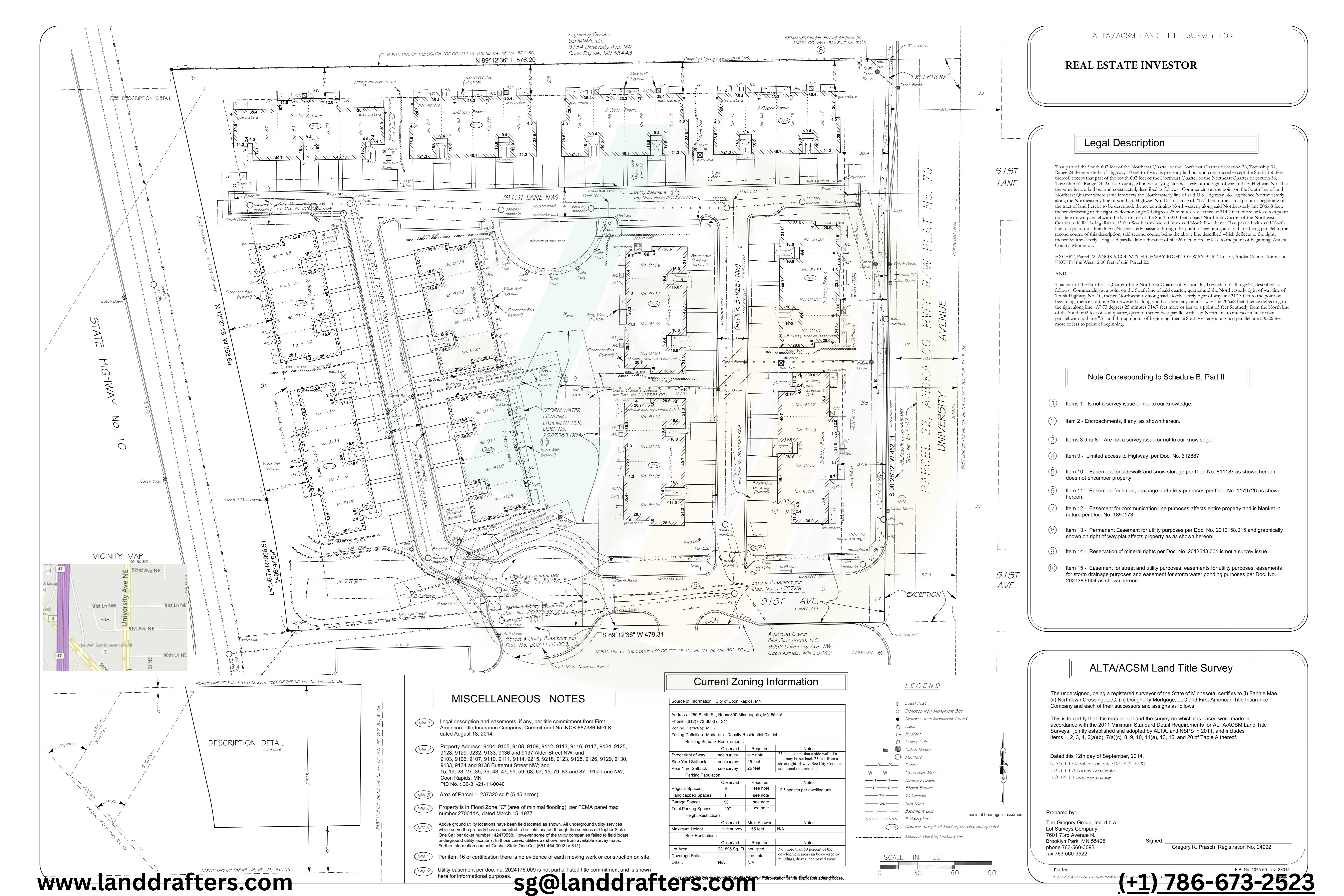
Precision-Driven ALTA/NSPS Land Survey Drafting for Real Estate & Development

Word precision is essential in any business involving property purchase and sales, land development, and physical property evaluation. ALTA/NSPS surveying services guarantee that all aspects of surveying meet the most significant standards of the industry to ensure the determination of the boundaries of a property, the locations of the easements, improvements, and any other feature that may be needed.

We at Land Drafters LLC provide the best services in ALTA/NSPS Land Survey Drafting Services to ensure accurate survey drafts for developers, lawyers, and engineers. It enables our professionals to produce ALTA/NSPS-compliant survey reports for every survey project, which reduces risks and time in real estate chains and compliance with regulations.

Get precise, reliable, and professional ALTA/NSPS land survey drafts tailored to your project requirements. Contact us today!

Comprehensive ALTA/NSPS Land Surveying Services

We provide a full range of ALTA/NSPS Land Survey Drafting Services, ensuring each survey contains the critical data for smooth transactions and legal compliance. Here’s what our drafting services include:

Standard Total Station Survey Data Points
Boundary Monument Identification
Property Boundary Analysis
Title Commitment Coverage Details
Existing Property Improvements
Utility Infrastructure on Site
Public Access and Right-of-Way Assessment
High-Resolution Orthomosaic Drone Images

Why Outsource ALTA/NSPS Land Survey Drafting Services?

Outsource ALTA/NSPS Drafting Service offers multiple benefits, including cost savings, accuracy, and expert oversight. Here’s why businesses trust us:

Saves You Time and Costs

Hiring an in-house team for ALTA/NSPS Survey Drafting may be costly. Thus, Outsource ALTA/NSPS Drafting Services from Land Drafters LLC minimizes overhead expenses while improving the speed at which surveys are conducted.

Utilizes Advanced Technologies

We use equipped CAD software, GIS mapping tools, and drones to make every ALTA/NSPS survey accurate.



Expert Guidance from Industry Professionals

Our team includes professional land surveyors and drafters with great experience in ALTA/NSPS land survey drafting to meet the standards of the reports we deliver.


Enhances Decision-Making

An effective ALTA/NSPS Land Survey Draft is helpful when understanding issues of property investments, zoning, and developments.


Ensures Code & Regulatory Compliance

New rules and regulations in real estate are changing with time, and adhering to them is thus essential. All our survey drafting services are executed based on the ALTA/NSPS standards to minimize issues of discrepancy that may arise.

Reduces Risk and Errors

Surveying is one of the most essential activities regarding land property; any mistake may cause a costly lawsuit. The survey drafting process is meticulous to avoid the many issues of improperly drafted surveys, generating high results.

Industries We Serve with ALTA/NSPS Land Survey Drafting Services

Land Drafters LLC provides ALTA/NSPS Land Survey Drafting solutions across multiple industries. Our expertise includes:

  • Real Estate Development We support real estate developers by providing precise and accurate survey drafts to aid in land purchases, zoning applications, and legal compliance.
  • Construction Our ALTA/NSPS survey drafts help contractors, engineers, and architects streamline construction projects from site planning to permitting.
  • Environmental Our surveys assist environmental consultants by mapping wetlands, conservation areas, and land use changes while complying with environmental regulations.
  • Utilities We work with energy, water, and telecommunications companies to draft surveys for infrastructure planning and expansion.
  • Government Our ALTA/NSPS Land Survey Drafting Services support public agencies in land use planning, property acquisition, and regulatory assessments.

Our ALTA/NSPS Land Survey Drafting Process

We follow a streamlined process to ensure accuracy, compliance, and efficiency in every ALTA/NSPS survey drafting project.

01.Collecting Required Information

We gather all necessary property documents, survey data, and title commitments to ensure accurate mapping.

02.Preparing for Linework

Our drafters structure base maps and organize survey data, preparing the foundation for detailed ALTA/NSPS survey drafting.

03.Creation of Detailed Linework

We create precise property lines, easements, right-of-ways, and improvements, ensuring legal and regulatory accuracy.

04.Labeling and Adding General Text

Annotations, labels, and legal descriptions are added to enhance the readability and compliance of the survey.

05.Verification & Finalization

Before final delivery, we conduct thorough quality control checks, ensuring every survey draft meets ALTA/NSPS standards.

Why Choose Land Drafters LLC?

Choosing the right ALTA/NSPS Survey Drafting Service provider makes all the difference. Here’s why Land Drafters LLC stands out:

Renowned Standing

We have a proven track record of delivering high-quality ALTA/NSPS land survey drafting solutions to satisfied clients across industries.

Modern Tech Solutions

We utilize the latest CAD, GIS, and drone technologies to produce highly accurate and detailed survey drafts.

Proficient R&D Team

Our research and development team continuously enhances our processes to deliver the most precise and compliant land surveys.

Affiliation with Reputable Entities

We collaborate with top surveying firms, real estate developers, and legal professionals to provide compliant and reliable survey drafts.

Quick Turnaround Time

We provide fast and efficient ALTA/NSPS survey drafting services without compromising accuracy.

Close to the Mark Output

Every survey draft undergoes rigorous quality checks to ensure it meets the highest industry standards.

Highly Competent Staff

Our team comprises certified land surveyors, CAD specialists, and GIS experts with extensive industry experience.

Advancing ALTA/NSPS Survey Drafting

We continuously evolve our survey drafting techniques to set new industry standards for precision and compliance.